With around 250 locations and 90 serve centers, we are represented in the most important economic regions of the world. The advantages are clear: short paths to our customers, fast response times and a shared language.
MFL90N
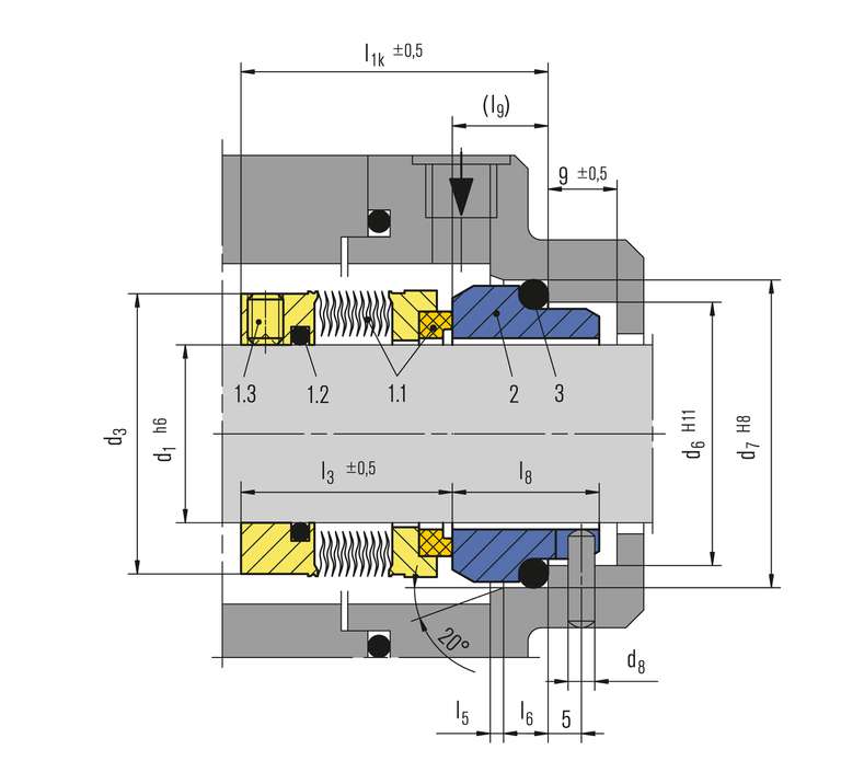
Shaft diameter: d1 = 20 … 100 mm (0.79" … 4“)
Internally pressurized: p1 = … 16 bar (232 PSI), stationary seat lock necessary.
Externally pressurized: p1 = 10 bar (145 PSI)
Temperature: t = -40 °C … +220 °C (-40 °F … +428 °F)
Sliding velocity: vg = 20 m/s (66 ft/s)
MFL85P / MFL90P
Version with pumping ring. Dependent on direction of rotation. Can be retrofitted.
MFL85F
Dimensions, items and description as for MFL85N, but with pumping screw (item no. 1.4). Dependent on direction of rotation. The pumping screw can be retrofitted.
Similar products
LY9DSTT
API 682 Category 2 and 3, Type C, Arrangement 3 seal